HI QUALITY,
THIS IS VALUE
YOU SHOULD GET TOGETHER MORE OFTEN.
CGIs are indicative
To discuss an opportunity at Fountain House,
contact our agent:
CGIs are indicative
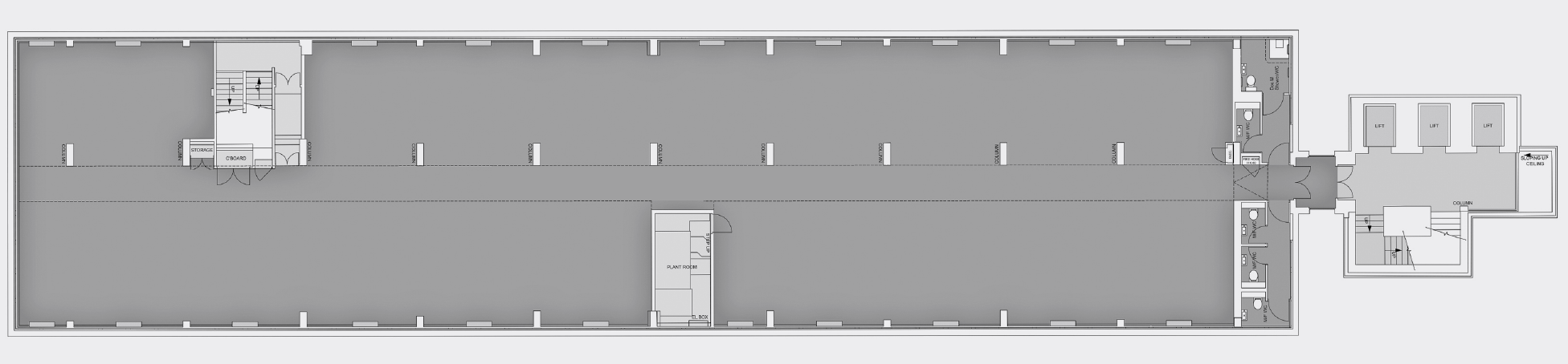
Recently refurbished to offer stylish, flexible office space, designed to work around the needs of the modern occupier. New features include:
| sq. ft. | sq. m. | |
| 5th Floor | 7,685 | 714 |
| TOTAL | 7,685 | 714 |
RICS code of measuring practice 6th edition
Download Floor Plan
Download Space Plan
CGIs are indicative